网站首页| 收藏本站| 新闻中心| 关于思达| 联系思达 欢迎进入济南思达测试技术有限公司官网!

济南思达测试技术有限公司20年专业试验机研发与生产

咨询热线0531-85981092

联系思达
咨询热线:0531-85981092

座机:0531-85981092

手机:15866749902(微信同号)

QQ:624395633

传真:0531-85981272

Email:624395633@qq.com

地址:济南市槐荫区新沙工业园南区3街6号

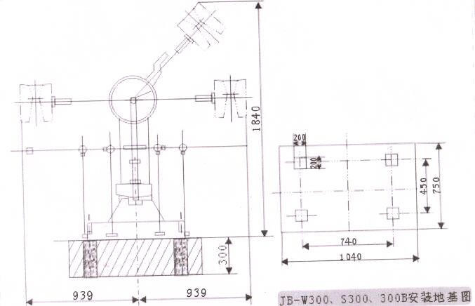
半自动冲击试验机型号JB-300B地基图

作者:admin 浏览量: 发布时间:2019-2-18
    这里介绍的半自动冲击试验机型号JB-300B地基图仅限于济南思达机型;地基图的作用除了保证试验的正常运行外,还用于用户选型指导方向之一。
    设备在安装时需要按地基图打好地基,将机器就位,并严格调好水平度,最后将机器固定好。因此地基图是安装设备的首要步骤。
关于地基图这里需要主要几点:
1.除了冲击试验机本身是需要打地基的,控制柜是不需要的

2.冲击试验机的地基虽然是以机器的下部决定的,但是一定要预留出足够的空间,足够摆锤垂直地面90度的,横向距离。